JR下曽根駅まで徒歩11分。
通勤・通学にも便利な立地。
商業施設も充実しています。
JR下曽根駅まで徒歩11分。
通勤・通学にも便利な立地。
商業施設も充実しています。

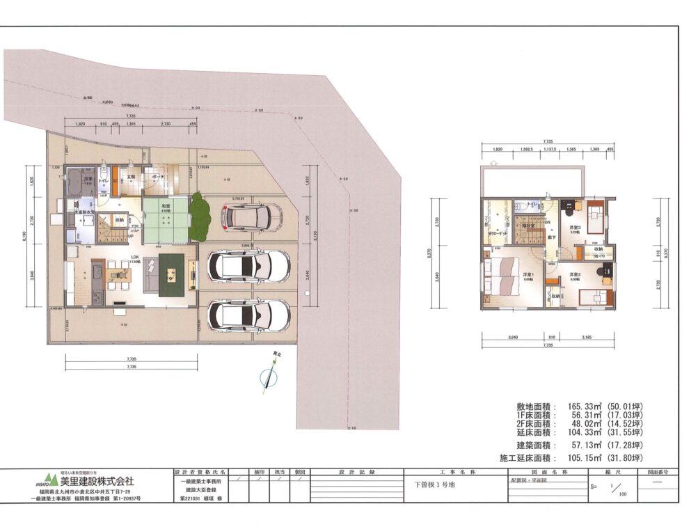
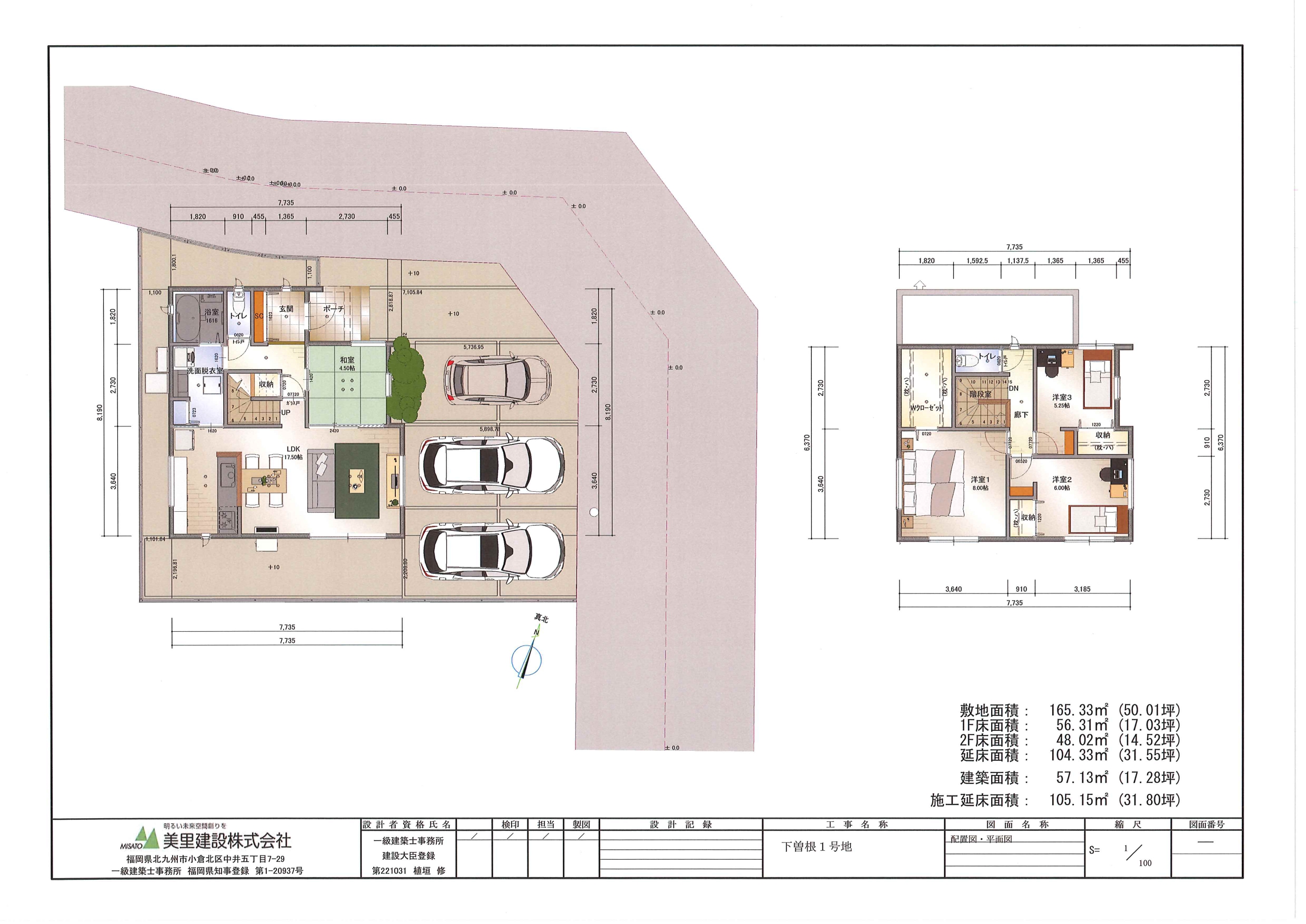
| 号地 | 面積 | 土地価格 |
|---|---|---|
| 1号地 | 165.33㎡(50.01坪) | 1,350万円 |
| 2号地 | 165.34㎡(50.01坪) | ご契約済 |
| 名称 | ガーデンステージ下曽根Ⅲ |
|---|---|
| 所在地(地番) | 福岡県北九州市小倉南区下曽根4丁目19-1 |
| 面積 | 1号地:165.33㎡(50.01坪) |
| 販売区画数 | 全2区画(うち1区画販売) ※建築条件付宅地 |
| 土地販売金額 | 1,350万円 |
| 交通 | JR日豊本線「下曽根駅」820m(徒歩約10分) |
| 地目:土地権利 | 所有権 |
| 用途地域 | 第一種住居地域(1号地:建ぺい率:70%、容積率:200%) |
| 接道状況 | 公道 東6m 北4.5m アスファルト舗装 |
| 設備 | 九州電力、公営上下水道、都市ガス(対応可能) |
| 校区 | 曽根東小学校(620m徒歩約8分)、曽根中学校(1000m徒歩約13分) |
| 水道加入金 | 53,900円(13mmの場合) |
| 開発許可番号 | |
| 取引態様 | 売主 |
【建築条件付宅地】
この土地は、土地売買契約後100日内に美里建設株式会社と、住宅の建築請負契約を締結していただくことを条件として販売いたします。
この期間内に住宅を建築しないことが確定したとき、または住宅の建築請負契約が成立しなかった場合は、土地売買契約は白紙となり、受領した金額は全額返還いたします。